Overview
The project aimed to enhance the existing home by extending into the loft space and improving the usability of the external areas.
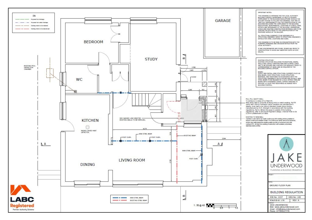
The Design
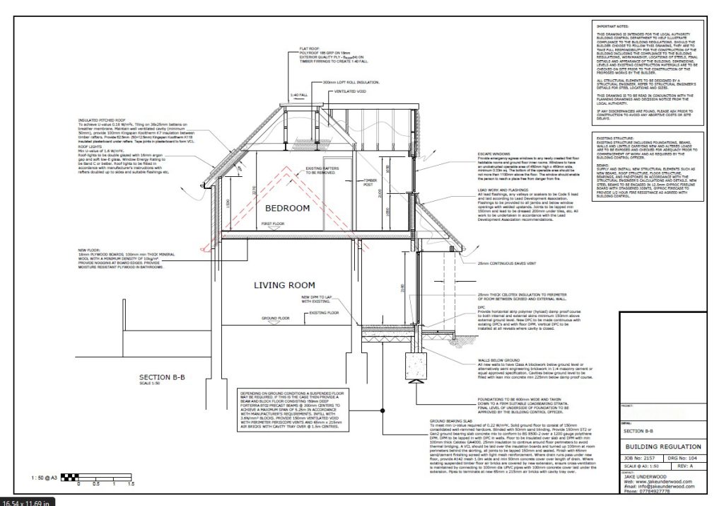
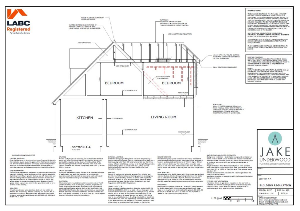
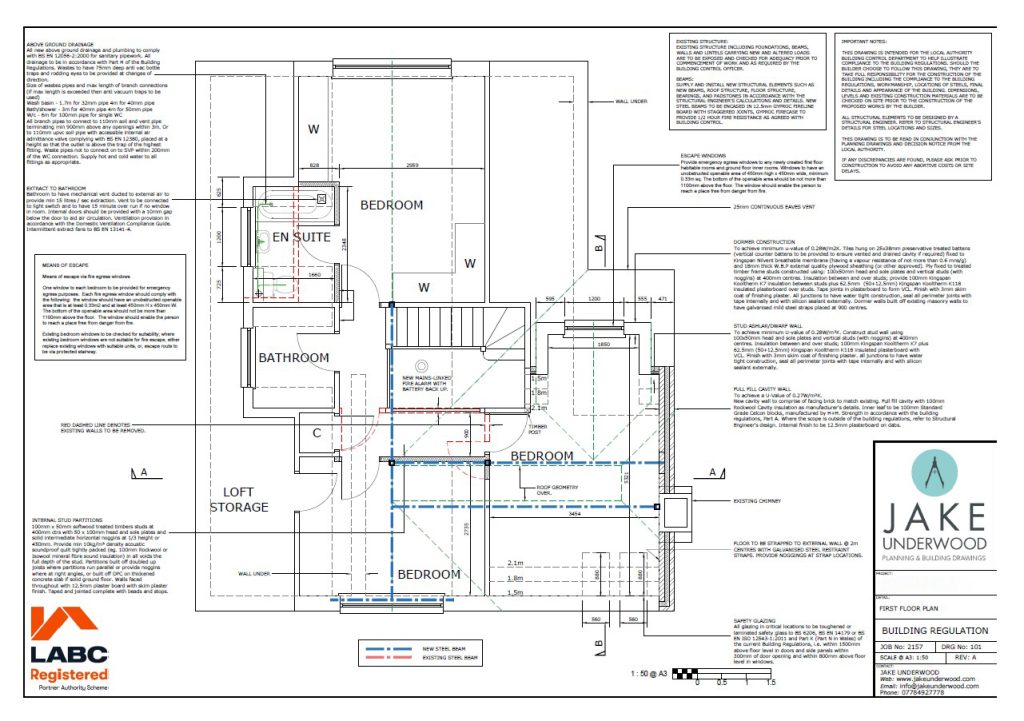
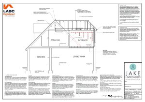
The design extended the front roof area to create a larger third bedroom, incorporating a rooflight to bring in natural light.
Externally, the layout of the garden was improved with a new patio area and defined access, creating a more usable and practical outdoor space.
Outcome
The design increases internal floor area while improving the overall balance between the house and garden, creating a more functional home.
Ready to Get Started?
If you’re planning an extension, loft conversion or new build, the first step is a simple conversation.
