Overview
The project aimed to increase usable space and improve the flow of the home through a combination of extension and internal reconfiguration.
The Design
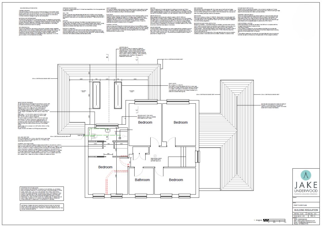
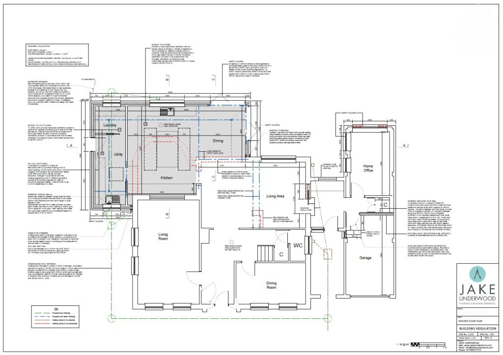
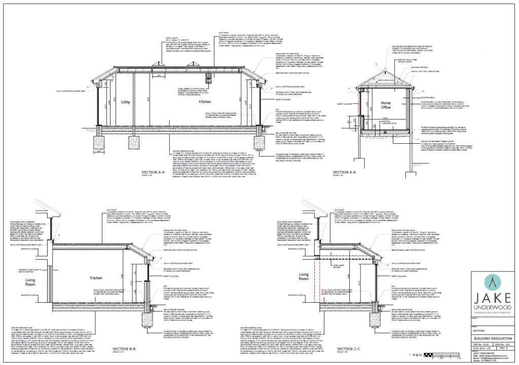
The rear extension was designed to create additional living space, while the existing garage was reconfigured to provide a home office and utility area.
Internal changes allowed the layout to open up into a more spacious kitchen and living area, improving the connection between spaces.
Outcome
The completed design delivers a more open and practical layout, with improved living space and greater flexibility for everyday use.
Ready to Get Started?
If you’re planning an extension, loft conversion or new build, the first step is a simple conversation.
